ORIJENTACIJA STANA

3D PRIKAZ STANA

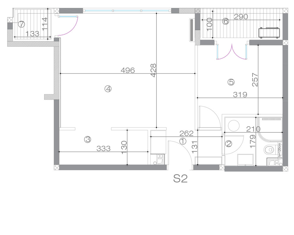
KVADRATURA PROSTORIJA
PROSTORIJA |
P |
|
| 01 | ULAZ | 3,32 |
| 02 | KUPATILO | 3,66 |
| 03 | KUHINJA | 4,46 |
| 04 | DNEVNI BORAVAK I TRPEZARIJA | 21,44 |
| 05 | SPAVAĆA SOBA | 9,01 |
UKUPNA GREJNA POVRŠINA |
41,89 |
|
| 06 | LOĐA | 2,90 |
| 07 | LOĐA | 1,51 |
UKUPNA KVADRATURA |
46,30 |
|






SPRAT |
STAN |
KVADRATURA |
| VISOKO PRIZEMLJE | STAN 02 – PRODATO | 46,30 |


